


Wir lassen diese Seite einfach mal als Erinnerung an eine gute Zeit im Netz.

Sie werden staunen, Sie finden in zentraler Lage eine grüne Oase, deren Charakter auf Fotos aufgrund der Bepflanzung des Grundstücks nur schwer zu vermitteln ist - Sie sollten sich vor Ort selbst überzeugen.
Das Gebäude befindet sich im Denkmalensemble Altstadt, Nähe Domplatz am Fusse der Citadelle.
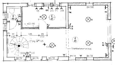
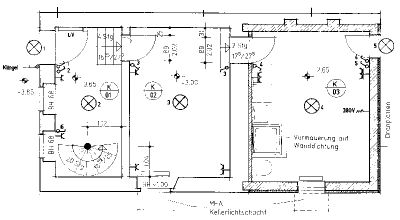
Die Wohn- und Nutzfläche beträgt etwa 162 qm, die sich auf 3 Etagen verteilen. Bei der Ausstattung wurden ausschließlich hochwertige Materialien verwendet.
Die Straßenbahnhaltestelle Webergasse/ Andreaskirche befindet sich quasi vor der Haustüre.
Bedarfsorientierter Energiepass liegt vor –
Verbrauchsorientierte Energieanalyse ist vorhanden –
Gebäudethermografie wurde durchgeführt –
PKW-Stellplatz auf dem eigenen Grundstück

Die heute noch sichtbare denkmalgeschützte Fassade wurde etwa 1898 errichtet. Bruchsteinmauerfragmente im Kellergeschoß lassen jedoch auf eine wesentlich frühere Bebauung am jetzigen Standort innerhalb der ehemaligen Stadtmauer schließen.
Das Objekt wurde 1998 als Ruine erworben und in Abstimmung mit dem Denkmalschutz nahezu vollständig entkernt und innerhalb der historischen Fassade völlig neu aufgebaut. Die Ausgangssituation können Sie HIER betrachten
Die Grundrisse in den Wohngeschossen sind individuell gestaltet, jedoch durch den Einbau von Ständerwänden durchaus veränderbar und variabel zu gestalten.
Es wurde also nicht – wie so häufig – irgend etwas zusammengeflickt, sondern unter Planung und Bauleitung eines bekannten Architekten mit qualifizierten örtlichen Handwerkern vergleichbarer Neubaustandard nach dem Stand 1998 hergestellt. Planer und Bauleitung bekommen von mir die Note besonders empfehlenswert, Referenzobjekte finden Sie auf deren Webseite www.spangenberg-braun.de
Einzelne Bauabschnitte wurden fotografisch dokumentiert und können bei Interesse gerne eingesehen werden.
Schauen Sie sich das Objekt einfach mal unverbindlich an – Besucher, Freunde und Bekannte sind jedenfalls regelmäßig immer wieder begeistert.






|